알림
뒤로
알림 설정
뒤로
더보기
게시물 알림
내 글 반응
내가 작성한 게시물이나 댓글에 다른 사람이 댓글이나 답글을 작성하면 알려줍니다.
공지사항
사이트에서 보내는 중요한 공지를 실시간으로 알려줍니다.
  • Alarm
    프로필 정보수정
  • 마이페이지 로그아웃
    로그인이 필요합니다.
  • Home
  • 본당소개
    • 본당안내
      • 개황 및 약사
      • 엠블럼 소개
      • 주보성인
      • 신부님 수녀님
      • 역대주임신부님
      • 역대보좌신부님
      • 역대원장수녀님
      • 역대전교수녀님
      • 사무실안내
    • 미사전례안내
    • 찾아오시는길
  • 소공동체
    • 사목방침
    • 사목협의회
      • 조직도
      • 상임위원회 명단
    • 구역분포도
    • 지역소공동체
      • 남성총구역
      • 여성총구역
  • 게시판
    • 주보공지
    • 본당공지
    • 단체별공지
    • 사목회 회의록
  • 나눔공간
    • 행사사진
    • 행사영상
    • 단체앨범
    • 마이포토
  • Home
  • 본당소개
    • 본당안내
      • 개황 및 약사
      • 엠블럼 소개
      • 주보성인
      • 신부님 수녀님
      • 역대주임신부님
      • 역대보좌신부님
      • 역대원장수녀님
      • 역대전교수녀님
      • 사무실안내
    • 미사전례안내
    • 찾아오시는길
  • 소공동체
    • 사목방침
    • 사목협의회
      • 조직도
      • 상임위원회 명단
    • 구역분포도
    • 지역소공동체
      • 남성총구역
      • 여성총구역
  • 게시판
    • 주보공지
    • 본당공지
    • 단체별공지
    • 사목회 회의록
  • 나눔공간
    • 행사사진
    • 행사영상
    • 단체앨범
    • 마이포토
site search
로그인
회원가입
  • Home
  • 본당소개
    • 본당안내
      • 개황 및 약사
      • 엠블럼 소개
      • 주보성인
      • 신부님 수녀님
      • 역대주임신부님
      • 역대보좌신부님
      • 역대원장수녀님
      • 역대전교수녀님
      • 사무실안내
    • 미사전례안내
    • 찾아오시는길
  • 소공동체
    • 사목방침
    • 사목협의회
      • 조직도
      • 상임위원회 명단
    • 구역분포도
    • 지역소공동체
      • 남성총구역
      • 여성총구역
  • 게시판
    • 주보공지
    • 본당공지
    • 단체별공지
    • 사목회 회의록
  • 나눔공간
    • 행사사진
    • 행사영상
    • 단체앨범
    • 마이포토
site search
로그인
회원가입
MENU
천주교 서울대교구 가락동 성당
site search
  • 주보공지
  • 본당공지
  • 단체별공지
  • 사목회 회의록

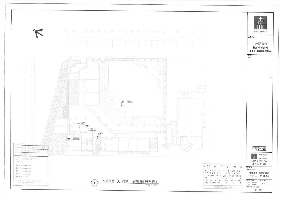
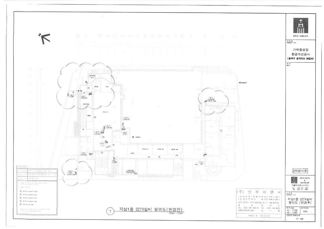
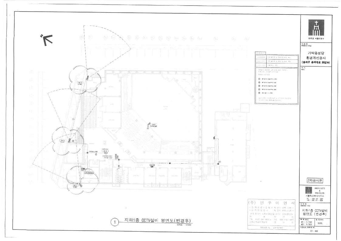
 본당공지


:: (22-05-03) 5월 1주차_주간공정회의 보고서

김무현
본당공지
2022-05-04
조회수 879

c5bb038278d6a.jpg

14ad27d8e7032.jpg

a18870bba4d12.jpg

c36a6bc458c00.jpg

6fea3c9c1c07b.jpg

fff0e5eb124a2.jpg

7eab717174d7a.jpg

9a3f4973d1119.jpg

ba29334038eff.jpg

259b967b50088.jpg

4b22087e17d23.jpg

7003ec1c6697b.jpg

7993e869c5e47.jpg

c48fcb8ec4660.jpg

14f2445b34e19.jpg

a59dfdc253639.jpg

f37cab5ad7913.jpg

dc2127bd8fbab.jpg

732f9294a140d.jpg

82ae424f5cd7c.jpg

ec75c5e3ec2d1.jpg

5d8582da4651c.jpg

2f10b1c517fdc.jpg

38ee392f31624.jpg

6e23ffb4ae5c0.jpg

2148cafd93b62.jpg

0c3e3187bee8f.jpg

7ef753c5a4e62.jpg

77bf107902617.jpg

700bf337aa52d.jpg

a0bd944c4f038.jpg

::(22-05-10) 5월 2주차_주간공정회의 보고서 :: (22-04-26) 4월 4주차_주간공정회의 보고서
목록

[05678] 서울 송파구 송파대로36길34(송파동)
TEL 02-425-2206~7 / FAX 02-425-2204

Copyright ⓒ 2026 천주교 서울대교구 가락동 성당 All rights reserved.